新規会員登録 お得な情報をゲットしよう!

大津市長等3丁目 収益マンション

9,800万円

滋賀県大津市長等3丁目5-36

京阪石山坂本線「三井寺」駅徒歩3分

京阪石山坂本線「びわ湖浜大津」駅徒歩8分

東海道本線「大津」駅徒歩18分

価格
9,800万円
間取り/面積
-/460.32㎡
所在地
滋賀県大津市長等3丁目5-36
築年
1981年2月(築45年)
駐車
交通

京阪石山坂本線三井寺」駅 徒歩3分

京阪石山坂本線びわ湖浜大津」駅 徒歩8分

東海道本線大津」駅 徒歩18分

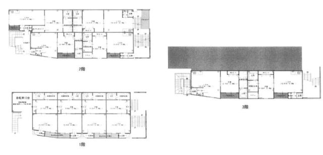
大津市長等3丁目 収益マンションの基本情報

物件名
大津市長等3丁目 収益マンション
価格
9,800万円
建物面積
460.32㎡
築年月
1981年2月(築45年)
総戸数
10戸
所在地
滋賀県大津市長等3丁目5-36
交通

京阪石山坂本線三井寺」駅 徒歩3分

京阪石山坂本線びわ湖浜大津」駅 徒歩8分

東海道本線大津」駅 徒歩18分

大津市長等3丁目 収益マンションの詳細情報

設備条件
設備(その他)
    -
駐車場/月額
無/-
土地権利
所有権
国土法届出
不要
用途地域
商業
戸数
10戸 / -
管理形態
-
管理員の勤務形態
-
管理会社
-
取引態様
その他
引渡し
相談

大津市長等3丁目 収益マンションで募集中の物件

  1. 139.24坪 (460.32㎡)

    9,800万円(70.38万円/坪)

近隣の物件

  1. 大津市本堅田3丁目

    - (863.02㎡)

    13,000万円

  2. 大津市中央1丁目

    1K (938.51㎡)

    26,800万円

大津市長等3丁目 収益マンション

お気軽にお問い合わせください

無料お問い合わせ

日本不動産投資パートナーズ

06-6147-8006

9:00~18:00

(休:祝日のみ)