新規会員登録 お得な情報をゲットしよう!

海老名市望地1丁目 売ビル

5,980万円

神奈川県海老名市望地1丁目1-1

小田急小田原線「海老名」駅徒歩15分

価格
5,980万円
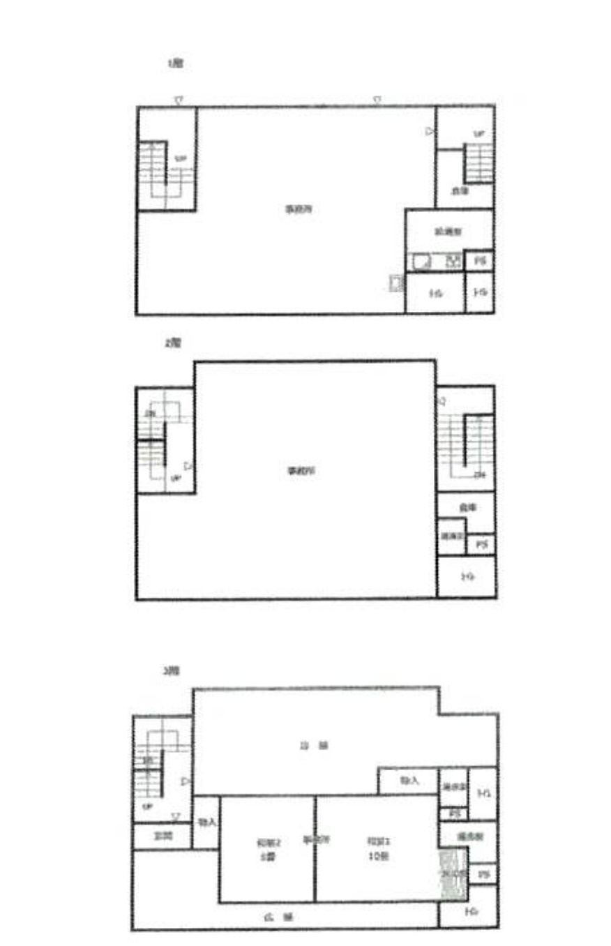
間取り/面積
-/339.60㎡
所在地
神奈川県海老名市望地1丁目1-1
築年
1990年2月(築35年)
駐車
空無
交通

小田急小田原線海老名」駅 徒歩15分

海老名市望地1丁目 売ビルの基本情報

物件名
海老名市望地1丁目 売ビル
価格
5,980万円
建物面積
339.60㎡
築年月
1990年2月(築35年)
総戸数
1戸
所在地
神奈川県海老名市望地1丁目1-1
交通

小田急小田原線海老名」駅 徒歩15分

海老名市望地1丁目 売ビルの詳細情報

設備条件
設備(その他)
    -
駐車場/月額
空無/-
土地権利
所有権
国土法届出
不要
用途地域
第一種住居
戸数
1戸 / -
管理形態
-
管理員の勤務形態
-
管理会社
-
取引態様
その他
引渡し
相談

海老名市望地1丁目 売ビルで募集中の物件

  1. 102.72坪 (339.60㎡)

    5,980万円(58.22万円/坪)

海老名市望地1丁目 売ビル

お気軽にお問い合わせください

無料お問い合わせ

日本不動産投資パートナーズ

06-6147-8006

9:00~18:00

(休:祝日のみ)